防爆工业宝马电子游戏娱乐
微信:133-6050-3273
手机:133-6050-3273
邮箱:
地址:广东深圳坪山区青松西路8号鸿合科技园

转轮除湿机根据工作原理的不同,不一定都采取蒸汽加热。转轮式除湿机原理,制冷方式可为直膨式和表冷式,再生加热方式可为蒸汽加热、电加热、热水加热、直接/间接燃气等加热方式。直澎式即为机组本身自带压缩机,因其制冷系统中液态制冷剂在其蒸发器盘管内直接蒸发膨胀实现对盘管外的空气吸热而制冷,直膨式转轮除湿机组不...
了解详情
宝马电子游戏娱乐 经常说空气相对湿度怎样怎样的,要买除湿机得计算相对湿度。那么相对湿度是什么?为什么在宝马电子游戏娱乐 眼里那么重要?相对湿度是空气中水分的量,与空气在该温度下“保持”的量相比。当空气容纳的水分到达一定温度环境时,它会凝结成露水。在确定除湿需求时,相对湿度非常重要,因为它可以让您在任何给定时间点正确...
了解详情
医院,治病救人的地方,要想病人快速回复健康,那么就要给病人提供一个健康舒适的康复环境。潮湿,是绝对不允许出现的,毕竟很多潮湿的地方是病菌最容易滋生的地方。那么,对于医院,有哪些科室是坚决不允许有潮湿现象呢?这些科室是必须严格控温控湿。说到控湿控温的科室,首先肯定想到手术室。通常来说手术室是需要开刀救...
了解详情
今年“入伏”后,北京的空气越来越潮湿。高湿度的天气如何保证食品安全呢?国家食药监局提醒公众,“伏天”的气候条件非常适宜各种微生物的生长,一次吃不完的食物一定要低温保存。专家提醒消费者,购买食材后应清洗干净,并尽快烧熟食用,一次吃不完的食物要及时放到冰箱冷藏或冷冻,再食用时应彻底加热。放在冷藏室的水产...
了解详情
有很多支气管炎患者在夏天温暖、潮湿的季节,不知不觉地患支气管炎,因为夏天是支气管炎的高峰期,我们必须采取预防措施。步骤/方法:1、夏天,很容易有一些有害的东西,如霉菌等。如果我们不注意它,我们就会患支气管炎。我有一个朋友不知道支气管炎。2、在平时的专家也告诉我们,在夏天是一个高发病率的季节,一些疾病...
了解详情
当你把东西放入存储器时,你想把它拉出来就像放入它时一样好。因此,你需要一个策略来减少霉菌和霉菌的风险。这里有六个提示,以帮助保护您的衣物,枪支,艺术品,书籍和其他不含水分的物品。1.存放前的清洁和干燥物品污垢会刮伤或留下顽固的薄膜,从而损坏物品。同样,食物碎屑可以吸引啮齿动物或其他害虫。由于存在这些...
了解详情
开关室内的高湿度会造成多种破坏性影响。当由于外部(天气)或内部(空调)因素而导致温度突然变化时,会导致开关设备表面上的湿气凝结。开关设备表面的冷凝水分对开关设备不利。水分可能凝结在开关设备绝缘体表面上,导致其吸收水分。水分会导致灰尘颗粒变粘,在开关设备表面形成半导体薄膜。此外,如果开关室位于高密度交...
了解详情
优质的产品往往需要有一个良好的生产环境。在高新技术发展的今天,电子器件显得格外重要。电子生产作业,对厂房车间内部的要求严格,特别要控制好环境的温湿度、洁净度,因为电子器件、印刷电路板、元器件和数据对静电放电高度敏感。静电放电是指具有不同静电电位的物体互相靠近或直接接触引起的电荷转移。静电放电发生在不...
了解详情
皮革干燥中的水分问题皮革鞋底像其他有机材料即,木材,纸等是高度吸湿性的,在处理过程中或储存过程中往往会吸收周围空气中的水分。皮革鞋底吸收的多余水分导致微生物活性增加。当相对湿度高于40%时霉菌,霉菌和真菌萌发。微生物的生长对皮革等材料是有害的,因为它不仅会导致分解,而且还会机械地削弱。一般建议:预干...
了解详情
室内溜冰,冰上曲棍球和冰壶溜冰场中的凝结,雾气和不舒适的气氛是湿度/湿度的结果。由于冰面趋于冷却,它开始放弃水分,即开始出汗。这导致金属和霉菌腐蚀,真菌生长。等等。由于冷凝水的滴落,冰的质量使得滑冰表面不均匀并且不安全。不受控湿度的影响霉菌,霉菌和真菌生长导致基础设施腐蚀不均匀的滑冰表面导致致命的跌...
了解详情
除湿机在如今的生活中很常见,除湿机不仅在家庭中有应用,而且在工业上的医用更为广泛。但是大家对于烘干房专用除湿机又了解多少呢?不要担心,跟随本文进行系统的了解一下吧,相信能够帮助到大家。烘干房除湿机除湿机是制冷空调家庭中的一个小成员。目前全球除湿机的主要产地集中在意大利、日本和中国台湾等地,中国在全球...
了解详情
湿度控制在纺织加工中的重要性在我们的日常生活中,我们周围空气的湿度极少值得讨论,除非我们在桑拿浴室放松身心,或在赤道附近度假。但是,在纺织品加工过程中,湿度比较多的问题并不多。处理错了,可能造成停止生产,损坏机械和伤害员工。处理好了,您可以最大限度地提高产品重量,提高质量和提高机器速度。空气湿度测量...
了解详情
在气候湿度较高的环境中,家里经常会发霉,特别是各类衣物等生活用品。卫生间和厨房相对更加潮湿的地方,墙壁尤其墙角位置更是霉菌频繁出现的地方。家里各处都有可能成为霉菌的集中据点,一旦发霉就额外闹心。处理不当的话,会造成经济上的损失,甚至威胁到家人的身体健康。因此,家里的防霉工作万万不能大意。采取怎样的措...
了解详情
调温除湿机用蒸发器来给空气降温除湿,并回收系统的冷凝热,弥补空气中因为冷却除湿时散失的热量,是一种高效节能的除湿方式,已经广泛应用于国防工程、人防工程、烟草及石化行业、地铁车站、航天领域净化工程、实验室、电讯器材室、档案室、食品房、制药或胶片车间、特种玻璃制造、粮食、木材等的除湿干燥和高湿空间的除湿...
了解详情
航空工业中的湿度控制和水分去除对于保护整体和零件至关重要。航空工业中的应用非常多样化,包括露点控制和相对湿度。例如,需要40%的相对湿度(RH)以消除在飞机的生产,储存和操作期间的腐蚀,腐败和损坏。对于其他应用,可能需要通过控制露点以防止腐蚀来确保不形成冷凝。我们在这个行业遇到的一些问题包括:航空电...
了解详情
现在,很多业主在进行地面装修的时候会考虑用木地板。木地板有温润柔和、自然宜人、隔音、脚感舒适、防滑安全等优点,被越来越多的消费者所喜爱。选用木地板,经常会出现木地板起翘的问题。木地板起翘最重要的一个原因是安装环境过于潮湿。如果房间内湿度过高,就会导致地板发生不规则的膨胀从而起翘。因此,不从根本上解决...
了解详情
有很多支气管炎患者在夏天温暖、潮湿的季节,不知不觉地患支气管炎,因为夏天是支气管炎的高峰期,我们必须采取预防措施。步骤/方法:1、夏天,很容易有一些有害的东西,如霉菌等。如果我们不注意它,我们就会患支气管炎。我有一个朋友不知道支气管炎。2、在平时的专家也告诉我们,在夏天是一个高发病率的季节,一些疾病...
了解详情
一个可能会损害你的健康和房子的问题现有地下室的水分问题非常普遍,但往往不被理解或妥善处理。在一个很少使用的地下室和上面的生活空间分开,这可能不会有很大的问题。但是,明尼苏达州的大多数地下室都通过管道或其他开口与房屋的其余部分相连。另外,地下室越来越多地被用作完成的生活和卧室空间。在这些情况下,潮湿问...
了解详情
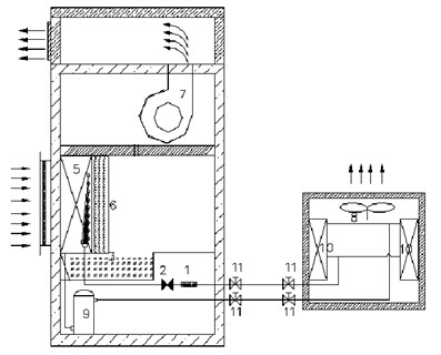
宝马电子游戏平台网址 除湿工艺流程图让我们来了解下一个除湿器的技术。除湿机工作流程转轮除湿器的工作过程可分为几个部分:预冷/预热(可选部分)-转轮除湿-后冷/后热(可选部分)预冷/预热:使用冷冻水降低空气的温度,使空气在冷却过程中,相对湿度逐渐接近饱和状态,在要求的温度下,高于空气温度的饱和状态会沉淀出多余的水...
了解详情
随着人们生活水平的不断提高,人们对游泳、桑拿房等休闲场所的环境提出了更高的要求。控制游泳馆、水疗中心等室内空气的温湿度是一个难题。一座中型游泳池每天蒸发出的水量约有1吨,一个4平方米的水疗中心每小时蒸发近6升的水,这相当于20人进行激烈骑自行车运动。高湿空气不仅使人感到闷热不舒服,也会对馆内建筑及装...
了解详情